食品級板式換熱器 |
|
|
食品級板式換熱器
食品級板式換熱器是一種新型的節能熱交換裝置,具有傳熱效果高、結構緊湊、占地面積小、 操作簡便,清洗、拆卸、維護方便,容易改變換熱面積或流程組合等優點。
板片人字形波紋,介質流動形成湍流狀態,粘膠式密封墊片。傳熱系數能高達2000~6000 W/m2.℃ 左右。 本產品適用于化工、機械、食品、飲料、醫藥、住宅供暖、供熱水、空調等部門。 |
|
 |
板片材質: |
不銹鋼材質:SUS304、321、316、316L、純鈦TAI-A |
密封墊片: |
丁晴膠(NBR) (使用溫度:-20-+120℃) 三元乙丙膠(EPDM) (使用溫度:-50-+150℃) 氟膠(Viton) (使用溫度:-0-+180℃) |
板片厚度: |
0.5mm | |
MB15型板式換熱器主要技術參數:
最大組裝面積 |
150 m2 |
最大水處理量 |
380 m3/h |
管徑 |
DN150 |
最大設計壓力 |
1.6 Mpa |
最大設計溫度 |
180 ℃ |
流道截面積 |
0.00117 m2 |
波紋深度 |
2。6 mm |
板片尺寸 |
1502×500 mm |
中心距 |
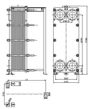
298.5×1294 mm |
傳熱系數 |
2000-6000 W/m2·℃ |
MB15型板式換熱器外形尺寸:
長度(mm) |
換 熱 面 積 (m2) |
30 |
60 |
90 |
120 |
150 |
L |
板片數 x 3.1mm |
L1 |
840 |
1040 |
1240 |
1540 |
1840 |
MB15型板式換熱器設備外形尺寸:(僅供參考)
 | |